Planungszeichnung

Grundrisse, Ansichten und Schnitt für Reihenhäuser

Auftraggeber: Architekturbüro Fuss&Partner GbR (Kelkheim)
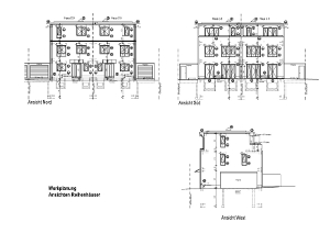
Projektbeschreibung: Erstellung von Plänen (Grundrisse, Ansichten, Schnitte, Detailpläne, Treppenpläne)
für eine Werkplanung mehrerer Reihenhäuser

Grundrisse als pdf öffnen.

Ansicht als pdf öffnen.

Zeichenbüro digitale Zeichnungserstellung

Treppenplan als pdf öffnen.

Planungszeichnungen